草莓视频IOS下载,草莓视频二维码,草莓视频下载污污,草莓视频APP黄在线观看

欢迎来靖江市草莓视频IOS下载起重设备有限公司!草莓视频IOS下载将为您提供周到的服务!

电磁挂梁起重机由什么构成

发布日期:2021-08-19 17:30:36      浏览次数:
电磁挂梁起重机是一种桥式起重机,主要用于钢板、坯料、棒材捆绑等尺寸较长物品的吊运;旋转式电磁式挂梁起重机通过吊具或小车的旋转,实现所吊物品在吊运过程中的水平方向上旋转一定角度。可旋转的吊具称为下旋转式电磁挂梁起重机,可旋转的小车称为上旋转式电磁挂梁起重机。上旋转式电磁挂梁起重机小车一般为上下两层结构,两层小车通过旋转机构连接,旋转机构采用车轮、环轨或滚动轴承式旋转支方法成熟,而旋转支承式旋转机构多用于工程机械,在桥回转机械中应用较少。各种标准、设计手册和教材对旋转机构的计算方法也更适合工程机械,在桥回转机构的计算中存在诸多不便。因此,主要讨论了旋转电磁吊梁起重机构的计算方法。


一是机构简介。


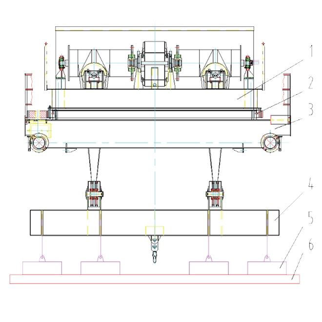
如图1所示,上旋转电磁车和吊具如图1所示。下车配有小车运行机构,可实现小车在桥架轨道上的往复直线运动,上车通过旋转机构与下车连接,可与下车在水平面上进行旋转运动,上车配有升降机构,电磁挂梁与上车一起旋转,从而实现所吊物品的旋转。


上车2.旋转机构3.下车4.电磁挂梁5.电磁盘6.所吊物品。


  • 返回
  • Contact Us
    • 联系QQ:670944510
    • 联系邮箱:sanmahulu@163.com
    • 传真:0523-84336321
    • 联系地址:江苏靖江市城北工业园区

    扫一扫  微信咨询

    靖江市草莓视频IOS下载起重设备有限公司 版权所有  技术支持:草莓视频二维码  备案号: 苏ICP备96301259号-1

    网站地图